Main Content

Napa Valley Vineyard Views

NAPA VALLEY VINEYARD VIEWS

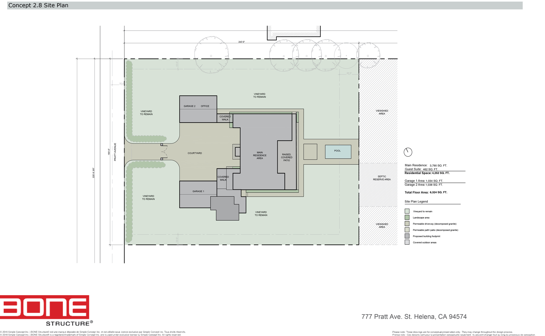
777 Pratt Avenue, St. Helena, California
  • STATUS: Sold
  • SOLD PRICE: $1,950,000
  • TYPE: Land / Vineyard, Luxury Portfolio
  • LOT: 1 acres

    Property Description:

    Prime buildable valley floor views parcels in excellent locations are hard to come by almost anywhere Napa Valley, but especially parcels of manageable size of one-acre or less. Add to that expansive vineyard views that benefit from deeded view protection, and it’s evident that 777 Pratt is clearly a rare offering. Create your own wine country getaway or build-out existing plans for a 4,252 sq ft 4-bedroom modern residence and accessory dwelling unit designed by BONE Structure and featuring energy efficient steel panel construction. The property enjoys a high capacity water well and septic site evaluation for 5-bedrooms. Conveniently located a short jaunt to charming downtown St. Helena and minutes from Calistoga and Yountville, this offering is a rare opportunity to create a custom Napa Valley vineyard view retreat.

    The accuracy of all information, regardless of source, including but not limited to square footages and lot sizes, is deemed reliable but is not guaranteed and should be independently verified through personal inspection and/or with the appropriate professionals. The information at this site is provided solely for informational purposes and does not constitute an offer to sell, rent, or advertise real estate outside the state in which the owner of the site is licensed. The owner is not making any warranties or representations concerning any of these properties including their availability. Information at this site is deemed reliable but not guaranteed and should be independently verified.

    Skip to content